News: Oct 19, 2021: EnSuite-Cloud ReVue enhanced to support 2D Drawing Data

FOR IMMEDIATE RELEASE
Debankan Chattopadhyay
+1 (248) 932-5295
debankan@cadcam-e.com



EnSuite-Cloud ReVue enhanced to support 2D Drawing Data
CCE answers users’ clarion call for CATIA V5 drawing data support

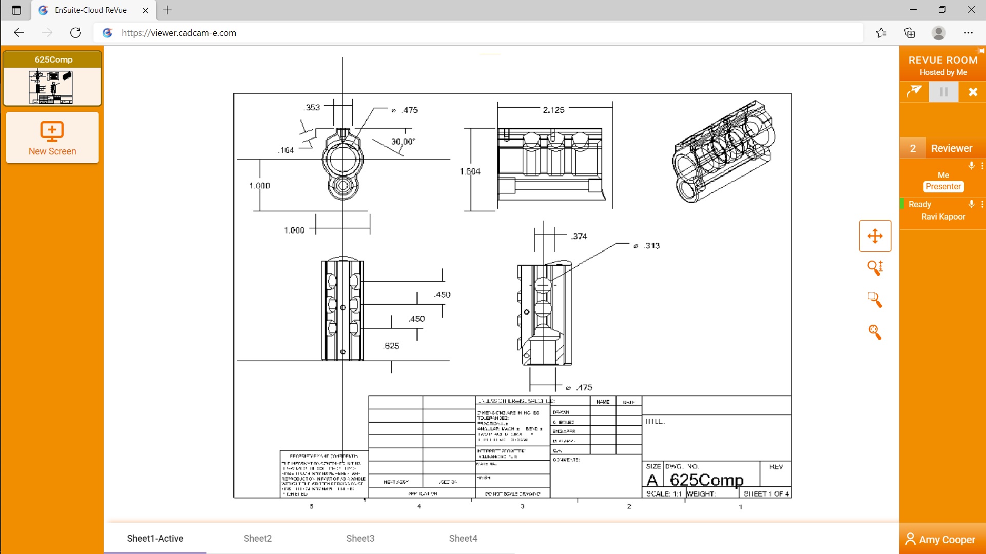
FARMINGTON HILLS, Mich. – (Oct 19, 2021) - CCE, a leading provider of advanced CAD interoperability solutions, announced a significant enhancement of its flagship Real-time Collaboration and Design Review Software, EnSuite-Cloud ReVue, by now allowing users to share 2D Drawing data in addition to 3D CAD support available since its launch.

Since its very successful launch earlier in the year, EnSuite-Cloud ReVue is being used extensively for sharing 3D CAD data for engineering design reviews. With this recent update, EnSuite-Cloud ReVue now supports CATIA V5 2D Drawing viewables in direct response to users clamoring for support of CATDRAWING data for the past several months.

ReVue

“We have always had customers drive our product roadmap. When we set out to create this product, our focus was 3D data. But clearly there is significant interest for collaboration using 2D data as expressed by our user base. Even among 2D users, demand for CATIA V5 drawing data was clearly the highest. This update for support of CATDRAWING data is in direct response to the requests we have been receiving from our users. In the next few months, we will add 2D support for other formats like SOLIDWORKS and NX,” said Vinay Wagle, CCE’s V.P. Sales and Marketing.

EnSuite-Cloud ReVue supports latest versions all the major CAD formats, including CATIA V5, CATIA V6 (3DXML), NX, SOLIDWORKS, Inventor, Creo, Solid Edge among others. Besides allowing users to collaborate using 2D and 3D CAD data, users can also share engineering documentation via screen-share thanks to its multi-document support in the same collaboration session.

ReVue

“Given our exclusive focus on engineering design collaboration, we always keep our product updated with support for the latest CAD formats and versions. So even though products like Zoom are suitable for simple collaboration using documents, spreadsheets, and PowerPoint presentations, for engineering design reviews using a mix of complex 2D/3D CAD data with the added ability to screens-share supporting engineering documents, EnSuite-Cloud ReVue is the natural tool of choice,” added Vinay.

Some of the key benefits of using EnSuite-Cloud ReVue for engineering design reviews over typical screen-sharing apps like Zoom include:

  • No software installation or browser extensions required
  • Integrated conference call facility
  • Real-time collaboration using 2D and 3D multi-CAD data. No CAD licenses required!
  • Support for multiple documents in the same collaboration session
  • Screen-sharing option for non-CAD documents for richer collaboration
  • High-quality 3D rendering with zero loss of fidelity of viewable data
  • Natural collaboration experience without any overhead for data or session preparation
  • Independent control of collaboration session without compromising intellectual property
  • Ultra-low latency allowing for excellent response/refresh rates
  • Low bandwidth usage allowing for easy sharing of large 3D CAD models

Since its general availability earlier this year, EnSuite-Cloud ReVue has received rave reviews from leading industry analysts in publications like Lifecycle Insights, Engineering.com, MCADCafe, Digital Engineering among others.

EnSuite-Cloud ReVue can be used for conducting engineering design reviews directly in the browser or access it from an active CAD session using ReVue LiveLink. ReVue LiveLink is available for major formats like SOLIDWORKS, Inventor, Solid Edge, SketchUp, 3D Max, Revit among others and is particularly useful for design reviews (conceptual design or engineering changes) where the CAD model needs to be edited and the results updated in real-time with participants in the collaboration session.

All new users can get a 15-day free trial for an Organizer license to evaluate the product. Users can visit the EnSuite-Cloud ReVue page for additional product and pricing information or to start their 15-day free trial.

About CCE:

Incorporated in Michigan, CCE has more than 30 years of CAD/CAM/CAE software development experience, as well as an extensive background in related services. Since 1989, CCE's focus on CAD technology & application development has spearheaded its mission to deliver customers value through innovative, disciplined, and communications-focused technology products and services. CCE has offices located in Farmington Hills, Michigan and Fort Lee, New Jersey. For more information on CCE's products and services, visit www.cadcam-e.com.

###
New Product Alert